Vakantiewoning

Luchtfoto

Zuidgevel vanuit het bos

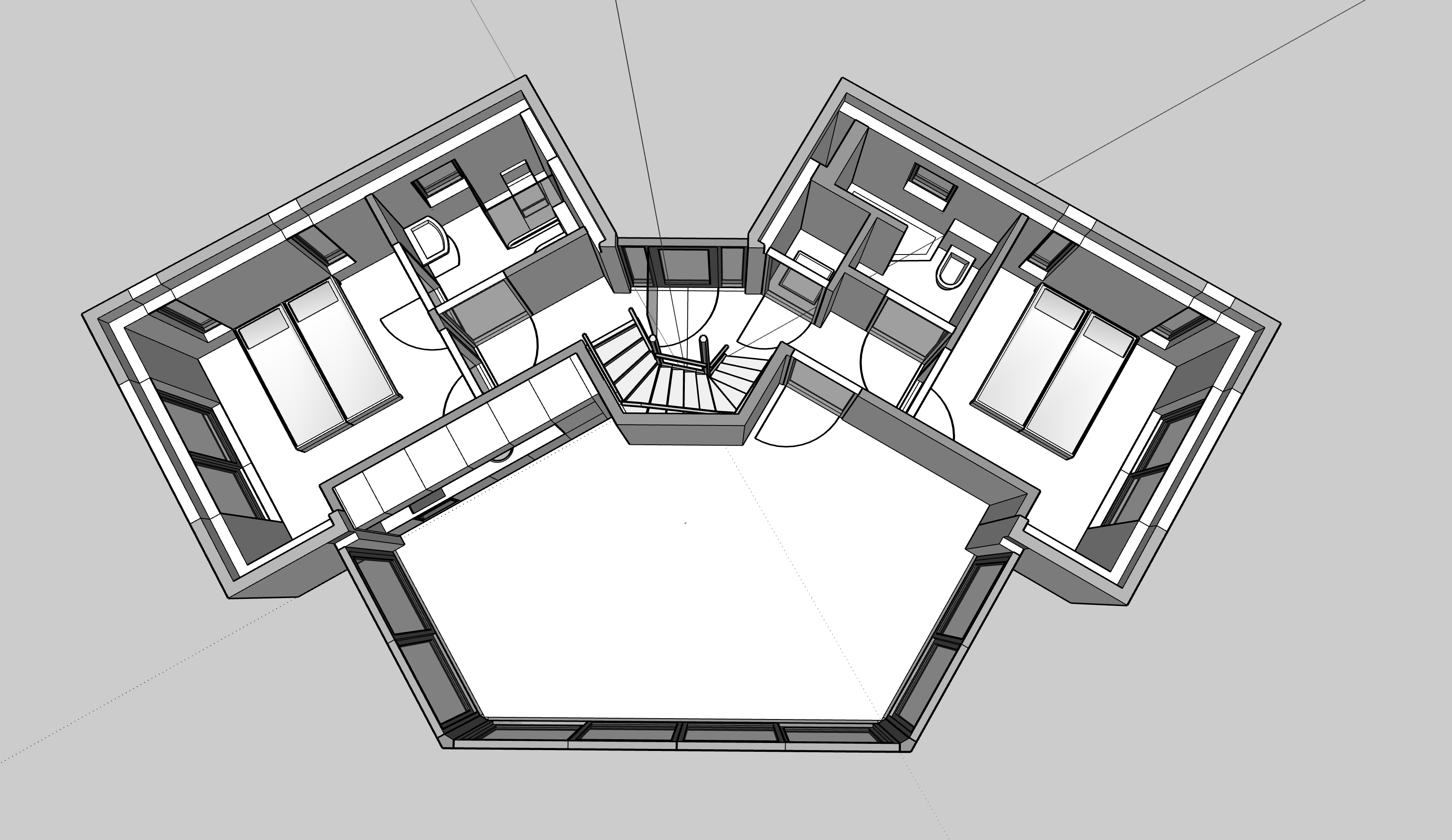
Plattegrond van de begane grond
Indeling
Het huisje heeft een begane grond en een verdieping.
De hal geeft toegang tot de woonkamer met keuken, twee slaapkamers, twee badkamers, een wasmachinekast en de trap naar de verdieping. Op de verdieping zijn nog twee slaapkamers.

Huisje gezien vanaf de weg

Uitzicht vanuit de woonkamer op het terras en het bos

Houtkachel met gewei (gevonden op ons terrein)
Woonkamer en keuken
De woonkamer heeft een zithoek, eethoek en een keuken. Aan de woonkamer grenst een terras op het zuiden met uitzicht op het bos , bereikbaar via schuifpuien. In de woonkamer is een houtkachel.
In de keuken is een oven, een magnetron, een inductie kookplaat, koelkast met vriesvak en een vaatwasser. Verder is er een koffiezetapparaat, waterkoker en een broodrooster.

Woonkamer vanuit de eethoek


Woonkamer met zithoek

De keuken en de eethoek
Slaapkamers
Op de begane grond zijn aan weerszijden van de hal twee tweepersoons slaapkamers, elk met een schuifpui en een klein eigen terras. De rechter slaapkamer is rolstoelgeschikt en heeft een badkamer-en-suite.

Oostelijke hoofdslaapkamer

Westelijke hoofdslaapkamer

Westelijke slaapkamer met badkamer-en-suite
Badkamers
Op de begane grond zijn twee badkamers grenzend aan de slaapkamers. De badkamer die grenst aan de rolstoeltoegankelijke slaapkamer beschikt over een douche met douche-zitje en regendouche, toilet met steunbeugels, en een wastafel, Deze badkamer is vanuit de slaapkamer en vanuit de hal te bereiken.

Badkamer met douchehoek

De westelijke badkamer heeft een opklapbaar douche-stoeltje, beugels naast de wc en wegklapbaar douche-scherm.

De oostelijke badkamer heeft een bad, toilet en wastafel.

Het bad met regendouche in de oostelijke badkamer.
Verdieping
Vanuit de hal is de overloop bereikbaar met een trap. Op de verdieping zijn twee tweepersoonsslaapkamers.

Uitzicht op de weg vanuit de overloop met balkon.

Eén van de slaapkamers op de verdieping vanaf de overloop.

De oostelijke slaapkamer met twee éénpersoons bedden.

De westelijke slaapkamer op de verdieping heeft ook twee éénpersoons bedden.
Voorzieningen
Het huisje is geschikt voor kinderen, er is kinderspeelgoed aanwezig, een kinderbedje en kinderstoel.
Er is wifi, een kleine tv met een settop-box.
De begane grond is drempelvrij en één van de slaapkamers en badkamer is rolstoelvriendelijk.
Er is een houtkachel.

Apparatuur
Op de begane grond is een werkkast met een wasmachine en droger. Er is een meterkast buiten links naast de ingang. Het huisje heeft vloerverwarming en een grote elektrische boiler. De warmte wordt opgewekt door een grondwarmtepomp die het huisje op een constante temperatuur houdt en in de zomer wat kan koelen. De warmtepomp en het boilervat staan in een kast in één van de slaapkamers.
Een deel van de energie wordt opgewekt met zonnepanelen.
De badkamers zijn voorzien van mechanische ventilatie.
De schuifpuien in de woonkamer en de oostelijke hoofdslaapkamer hebben elektrisch bedienbare buitenzonwering.
Het huisje is niet aangesloten op de riolering, maar werkt met een IBA (een septic-tank).
Aan de gevel naast de keuken is een buitenkraan en een buitenstopcontact.